3499拉斯维加斯
欢迎任何形式的媒体与商务合作
深入的了解,有利于为您提供更优质的服务
邮箱:stzhyun@qq.com
地址:广东省汕头市龙湖区金砂东路中信大厦1001、1203
邮编:515041
公司简介

广东3499拉斯维加斯科技有限公司成立于2015,是一家专业从事智能家居,智能硬件产品研发、生产、销售为一体的国家级高新技术企业,拥有多项核心技术优势。
项目公司-广东3499拉斯维加斯半导体有限公司成立于2021年3月31日,是广东3499拉斯维加斯科技有限公司的全资子公司。
项目介绍
本项目为我司自建的高标准生产总部,位于高新西片区中以核心片区汕头科学城:学林路与智源路交界。
项目用地面积20000㎡,总建筑面积68456.53㎡,
- 1-5栋为8层通用厂房共计42127.31㎡,厂房均高为 36.3m;其中 1栋建筑面积 9536.86 ㎡, 2栋建筑面积 8589.85 ㎡, 3栋建筑面积 7359.36 ㎡, 4栋建筑面积 8165.66㎡, 5栋建筑面积 8475.58 ㎡;
- 6栋为15 层综合办公楼, 高为 60.1m,建筑面积 22289.52.97 ㎡,配套负一层的地下车库, 高度为 3.8m, 建筑面积 3990.56 ㎡。
- 目前规划项目整体分两期建设,一期项目规划建设1-5栋厂房,二期项目为综合办公楼及地下车库。
项目核心优势
区位战略价值高
坐落高新区科学城核心区,享受区域产业升级政策扶持,毗邻龙头企业,共享技术、人才与供应链资源,赋能企业长远发展。
(高新区西片区发展规划图)
产业集群优势显著
引进培育新能源、新材料、新一代电子信息、大健康四大产业,重点打造汕头科学城,科学城主导产业高度协同,形成上下游联动效应,降低企业协作成本。
立体交通网络覆盖
地理位置优越,距离粤东城际铁路-赖厝站1公里,距离潮汕环线高速鮀莲站5公里,距离在建牛田洋快速1.5公里,南距离金凤西路300米,北距大学路1.2公里,无缝连接城市交通动脉; 30分钟通达市中心、机场及物流效率领先。距离汕头绿梦智慧物流园区4.1公里,距离通用物流园4公里,物流方便快捷促进园区项目资源要素快速流动。
(项目周边交通区位图)
人才储备充沛
距离汕头大学1.7公里,距离广东以色列理工学院2公里,距离广东以色列理工学院南校区仅600米,两所高校提供对口专业高层次人才,3公里范围内10万居住人口,覆盖技术工人至研发人员全层级用工需求,解决企业招聘痛点。
(项目周边科研资源)
产城融合配套完善
科学城规划涵盖商业、公寓、省级实验室、医院、小学中学等配套,毗邻企业园区与社区,满足员工生活及企业各项商务需求,提升对外的整体形象和运营便利性。
资产增值潜力明确
科学城和周边各类厂房建设加速区域价值跃升,高新区产业集聚效应凸显,入驻企业可同步享受区域发展红利与资产升值空间。
厂房图片




本项目2025年11月竣工交付,即买即用!
配备AI智能化应用,更有专业物业团队提供管理服务,为企业提供智能、优质的园区服务,保障企业安全。项目不设围墙,方便企业进出卸货和停车。



招商形式
可租
可以分栋、分层、分户租赁产业用房。
针对消费电子、玩具加工、模具开发、电商、初创企业等,提供共用会议室、UV打印、CNC精雕、电子产品方案开发等服务。
可售
可以分栋、分层购买产业用房,后续可以办理独立产权
主要针对注塑、包装、消费电子、新材料、玩具加工等产业
1-5栋厂房图纸及面积
1栋厂房
配备1条客梯,载重1.05吨;1条货梯,载重2吨
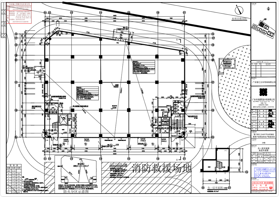
1#首层平面图
1#轴立面图
1#各层面积
2栋厂房
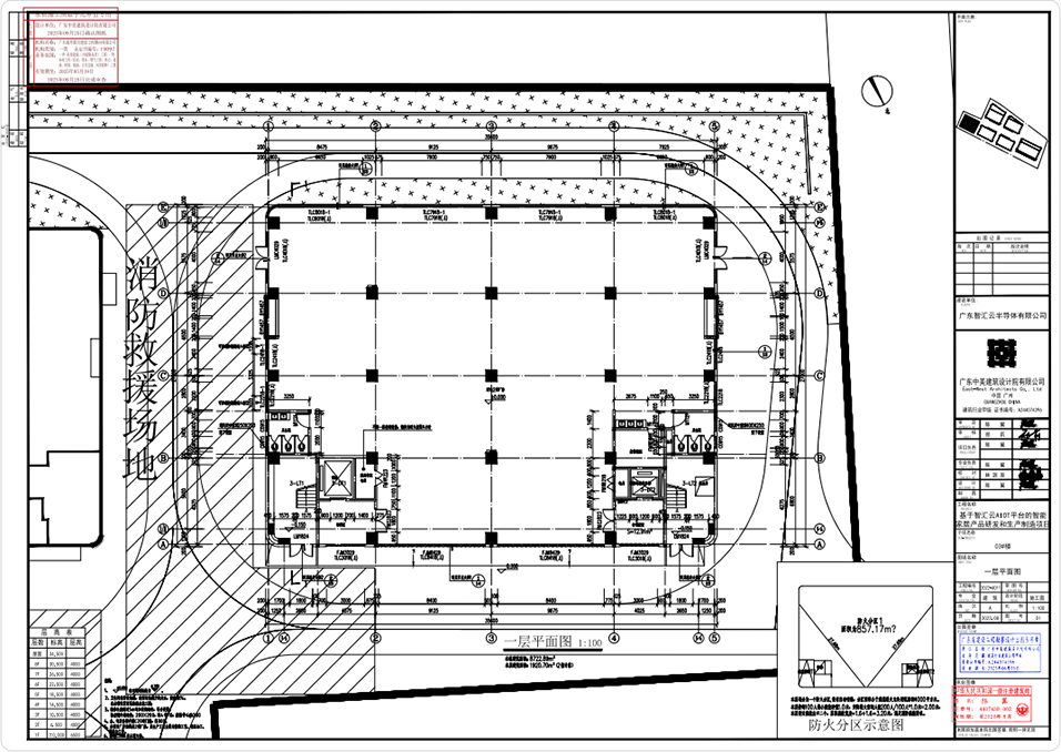
2#首层平面图

2#轴立面图
2#各层面积

3栋厂房
配备1条客梯,载重1.05吨;1条货梯,载重2吨
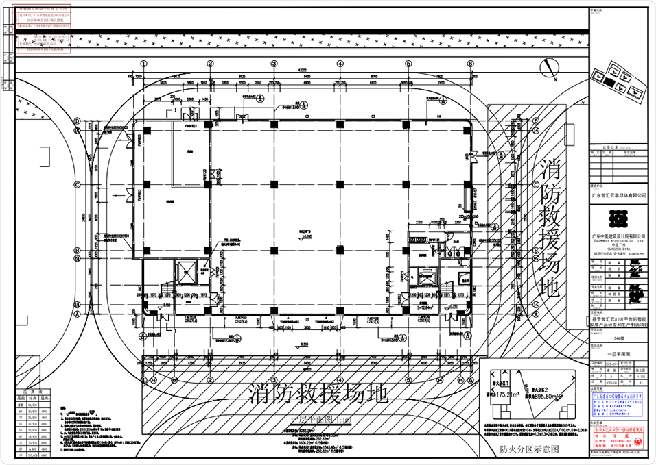
3#首层平面图

3#轴立面图
3#各层面积
4栋厂房
配备1条客梯,载重1.05吨;1条货梯,载重2吨
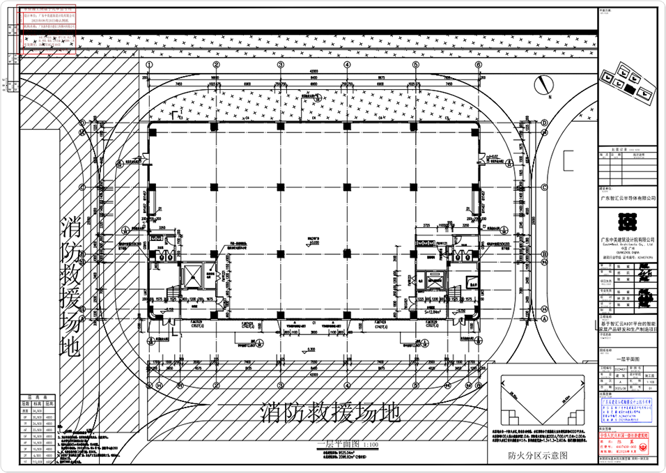
4#首层平面图

4#轴立面图
4#各层面积
5栋厂房
5#首层平面图

5#轴立面图

5#各层面积
关注了解更多




